- Accueil
- Vente
- Ain
- Divonne les bains
- DIVONNE LES BAINS - Un jardin, de la lumière et de l’espace : votre futur chez-vous à Divona Park
Référence : 1490
Calculette
Partager
DIVONNE LES BAINS - Un jardin, de la lumière et de l’espace : votre futur chez-vous à Divona Park
Partager l'offre
Description de l'offre
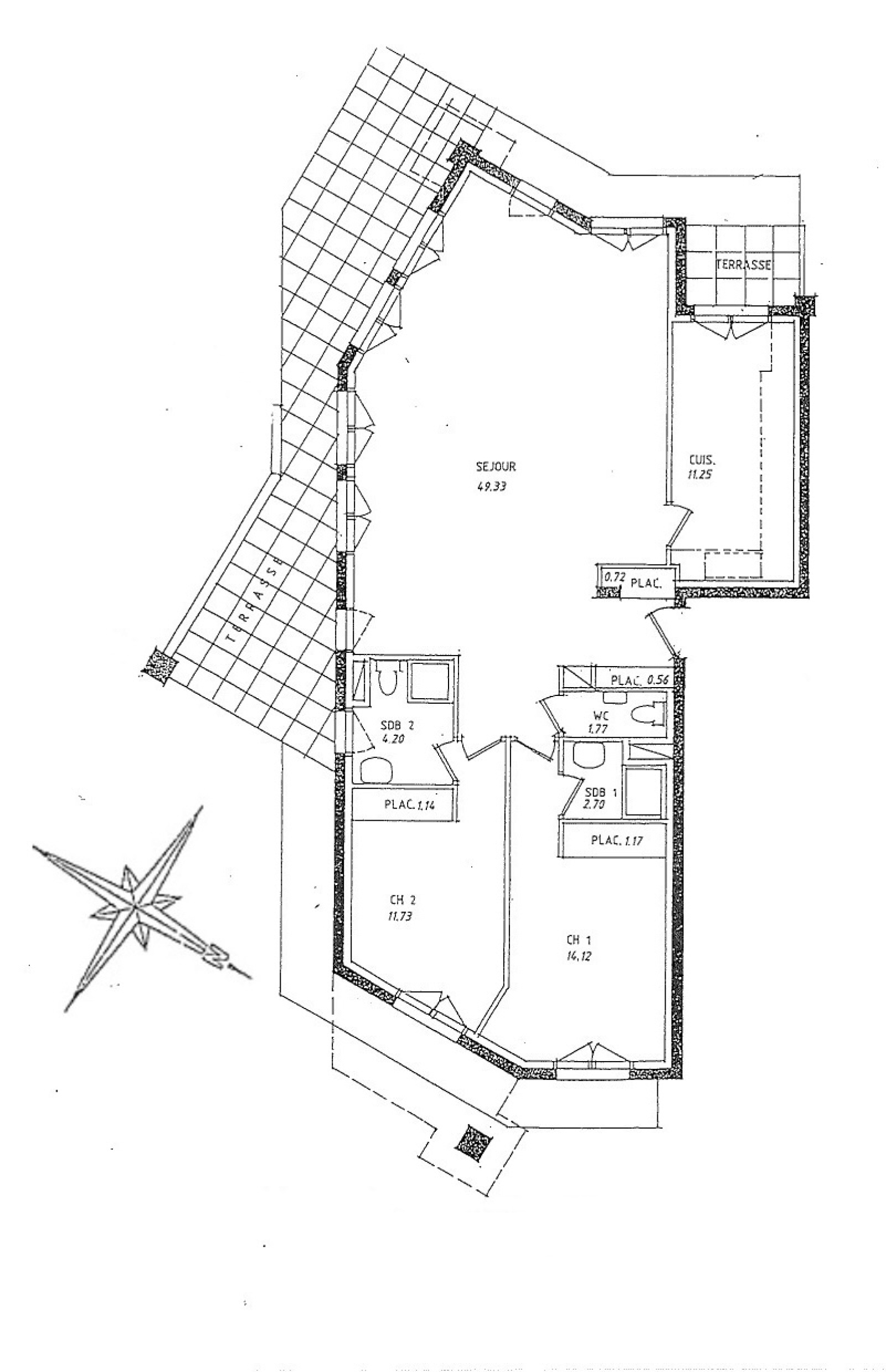
Divonne-les-Bains – Rez-de-jardin lumineux de 99 m², T3 transformable en T4, jardin privatif 150 m², résidence de standing avec piscine et tennis.
Situé dans la résidence recherchée Divona Park, cet appartement en rez-de-jardin offre une surface de 99 m², un jardin privatif de 150 m², un grand séjour lumineux, deux suites, ainsi qu’un garage et deux places de parking. Un bien rare sur le marché, idéal pour les familles, les retraités, les frontaliers travaillant en Suisse,
- Caractéristiques principales
. Appartement T3 de 99 m², facilement transformable en T4 (plans disponibles)
. Rez-de-jardin avec accès direct depuis toutes les pièces
. Séjour lumineux de 50 m² ouvrant sur terrasses et jardin
. Cuisine séparée équipée
. Deux suites avec salle de douche et rangements dans les chambres
. Salle d’eau visiteurs
. Jardin privatif de 150 m²
. Garage fermé de 22 m² + 2 places de parking privatives
- Résidence de standing
. Résidence sécurisée avec gardien
. Piscine chauffée
. Terrain de tennis
. Environnement calme, verdoyant et très bien entretenu
- Localisation idéale
. À proximité immédiate du centre-ville, du lac de Divonne et des commerces
. Accès rapide à la Suisse et aux organisations internationales (ONU, OMS, OMC, UNHCR)
. 15 min de l’Aéroport International de Genève
. 15 min de Nyon, 25 min du CERN, 30 min de Carouge, 40 min de Lausanne
Pour organiser une visite : 04.50.20.41.07
Les informations sur les risques auxquels ce bien est exposé sont disponibles sur le site Géorisques
Descriptif du bien
- Code postal : 01220
- Surface habitable (m²) : 99 m²
- Surface loi Carrez (m²) : 99 m²
- Nombre de chambre(s) : 2
- Nombre de pièces : 3
- Ascenseur : OUI
- Nb de salle de bains : 2
- Nb de salle d'eau : 1
- Cuisine : SEPAREE
- Type de cuisine : EQUIPEE
- Mode de chauffage : Gaz
- Type de chauffage : TRAD_TYPE_CHAUFF_CHAUDIERE
- Format de chauffage : Collectif
- Interphone : OUI
- Visiophone : OUI
- Terrasse : OUI
- Nombre de garage : 1
- Nombre de parking : 2
- Exposition : SUD-EST
- Année de construction : 2007
- Copropriété : OUI
- nombre de lots : 217
- plan de sauvegarde : NON
- statut du syndic : pas de procédure en cours
- Prix de vente honoraires TTC inclus : 669 000 €
- Prix de vente honoraires TTC exclus : 648 930 €
- Honoraires TTC à la charge acquéreur : 3,09 %
- Charges : 325 €
Montant estimé des dépenses annuelles d'énergie pour un usage standard est compris entre 1 290 € et 1 800 € . Prix moyens des énergies indexés sur les années 2021, 2022 et 2023 (abonnements compris).
La ville de Divonne-les-Bains (01220)
Nous Contacter
Afficher le téléphone 04 50 20 41 07Les informations recueillies sur ce formulaire sont enregistrées dans un fichier informatisé par La Boite Immo agissant comme Sous-traitant du traitement pour la gestion de la clientèle/prospects de l'Agence / du Réseau qui reste Responsable du Traitement de vos Données personnelles.
La base légale du traitement repose sur l'intérêt légitime de l'Agence / du Réseau.
Elles sont conservées jusqu'à demande de suppression et sont destinées à l'Agence / au Réseau.
Conformément à la loi « informatique et libertés », vous disposez des droits d’accès, de rectification, d’effacement, d’opposition, de limitation et de portabilité de vos données. Vous pouvez retirer votre consentement à tout moment en contactant directement l’Agence / Le Réseau.
Consultez le site https://cnil.fr/fr pour plus d’informations sur vos droits.
Si vous estimez, après avoir contacté l'Agence / le Réseau, que vos droits « Informatique et Libertés » ne sont pas respectés, vous pouvez adresser une réclamation à la CNIL.
Nous vous informons de l’existence de la liste d'opposition au démarchage téléphonique « Bloctel », sur laquelle vous pouvez vous inscrire ici : https://www.bloctel.gouv.fr
Dans le cadre de la protection des Données personnelles, nous vous invitons à ne pas inscrire de Données sensibles dans le champ de saisie libre.
Ce site est protégé par reCAPTCHA, les Politiques de Confidentialité et les Conditions d'Utilisation de Google s'appliquent.
