- Accueil
- Vente
- Ain
- Divonne les bains
- DIVONNE-LES-BAINS (VILLARD) - LES VERGERS DE LA ROUE - 2 MAISONS
Référence : bis aquarelle
Calculette
Partager
DIVONNE-LES-BAINS (VILLARD) - LES VERGERS DE LA ROUE - 2 MAISONS
Partager l'offre
Description de l'offre
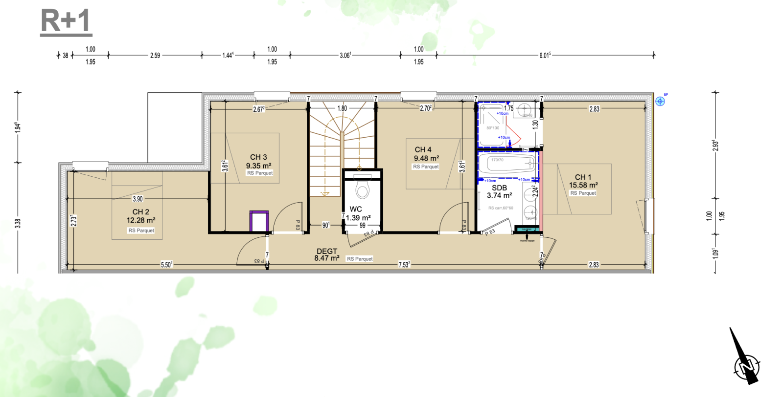
DIVONNE LES BAINS - SECTEUR VILLARD - LES VERGERS DE LA ROUE Dans un quartier résidentiel, proche du centre ville, découvrez cette construction faisant partie d'un complexe de 2 maisons mitoyennes aux lignes architecturales contemporaines. Le bien comprend : Rez-de-chaussée: - un hall d’entrée - un espace de vie lumineux avec séjour salle à manger ouvrant sur une terrasse orientée sud - une cuisine à aménager selon vos envies - un WC À l'étage : - quatre chambres, dont une suite parentale avec salle de douche, - une salle de bain, - un toilette - une buanderie. 2 places de stationnement extérieures et 1 garage. Divonne-les-bains bénéficie d’un cadre exceptionnel et d'un environnement résidentiel calme, verdoyant et privilégié, à seulement 25 minutes de l’Aéroport International de Genève, 45 minutes de Lausanne, et à proximité des Organisations Internationales (ONU, OMC, CERN…). Pour obtenir des informations complémentaires et organiser une visite, contactez l’agence HOME'NEST Immobilier située au 269 avenue de Genève, 01220 Divonne-les-Bains. Ou appelez-nous au 06.58.28.21.31. Les informations sur les risques auxquels ce bien est exposé sont disponibles sur le site Géorisques : www.georisques.gouv.fr
Descriptif du bien
- Code postal : 01220
- Surface habitable (m²) : 110 m²
- Surface loi Carrez (m²) : 110 m²
- Nombre de chambre(s) : 4
- Nombre de pièces : 5
- Nombre de niveaux : 2
- Nb de salle de bains : 2
- Cuisine : SANS
- Mode de chauffage : Pompe à chaleur
- Type de chauffage : Au sol
- Format de chauffage : Individuel
- Terrasse : OUI
- Nombre de garage : 1
- Nombre de parking : 2
- Quartier : CENTRE VILLE, DIVONNE, Frontière de Genève
- Prix de vente honoraires TTC inclus : 739 000 €
La ville de Divonne-les-Bains (01220)
Nous Contacter
Afficher le téléphone 04 50 20 41 07Les informations recueillies sur ce formulaire sont enregistrées dans un fichier informatisé par La Boite Immo agissant comme Sous-traitant du traitement pour la gestion de la clientèle/prospects de l'Agence / du Réseau qui reste Responsable du Traitement de vos Données personnelles.
La base légale du traitement repose sur l'intérêt légitime de l'Agence / du Réseau.
Elles sont conservées jusqu'à demande de suppression et sont destinées à l'Agence / au Réseau.
Conformément à la loi « informatique et libertés », vous disposez des droits d’accès, de rectification, d’effacement, d’opposition, de limitation et de portabilité de vos données. Vous pouvez retirer votre consentement à tout moment en contactant directement l’Agence / Le Réseau.
Consultez le site https://cnil.fr/fr pour plus d’informations sur vos droits.
Si vous estimez, après avoir contacté l'Agence / le Réseau, que vos droits « Informatique et Libertés » ne sont pas respectés, vous pouvez adresser une réclamation à la CNIL.
Nous vous informons de l’existence de la liste d'opposition au démarchage téléphonique « Bloctel », sur laquelle vous pouvez vous inscrire ici : https://www.bloctel.gouv.fr
Dans le cadre de la protection des Données personnelles, nous vous invitons à ne pas inscrire de Données sensibles dans le champ de saisie libre.
Ce site est protégé par reCAPTCHA, les Politiques de Confidentialité et les Conditions d'Utilisation de Google s'appliquent.
